• Work
  • ABOUT
  • CONTACT
Polyphon Architecture & Design, LLC  |  A Portland, Oregon Firm Providing Residential, Multi-use and Commercial Design
  • Work
  • ABOUT
  • CONTACT

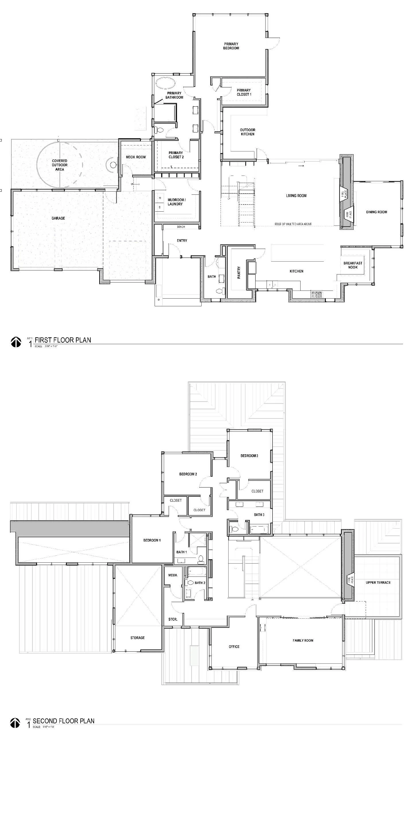
MOUNTAIN VIEW RESIDENCE

Located in the Columbia River Gorge National Scenic Area, the project is a two-story, wood-framed structure with an attached garage, outdoor pool, and detached pool house. Constructed in a contemporary northwest style, the house features a double-height living space with maximal views to the open fields and rolling hills beyond. A grand stone chimney accommodates two side-by-side fireplaces facing in opposite directions, one towards the living room and one towards the dining room. A third fireplace is located on an outdoor terrace on the second floor overlooking the pool and surrounding landscape. The pool and hot tub are surrounded by concrete planters containing varied vegetation, creating a harmony amongst landscape and hardscape.

LOCATION
Hood River, OR

SIZE
5,500 SF

STATUS
Construction

CONTRACTOR
Ethan Beck Homes

Mountain View_Render_Fron_editedt.jpg
POOL VIEW
PLANS
ELEVATIONS
SECTIONS
Construction Photo.jpg

Powered by Squarespace.